埠頭指標対応措置及び水域指標対応措置による制限区域の指定
- 必要度 (1-100)
- 95 (高)
- 財政負担 (1.0-5.0)
- 1 (軽)
- 規制負担 (1.0-5.0)
- 3
- 政策効果 (1.0-5.0)
- 5 (高)
- 判定理由
- 国際航海船舶及び国際港湾施設の保安の確保等に関する法律に基づき、港湾施設の保安を確保するための制限区域を具体的に指定する法定受託事務に近い性質の告示であるため。
名称 | 国際埠頭施設 |
川崎コンテナターミナル | 川崎コンテナ1号岸壁 |
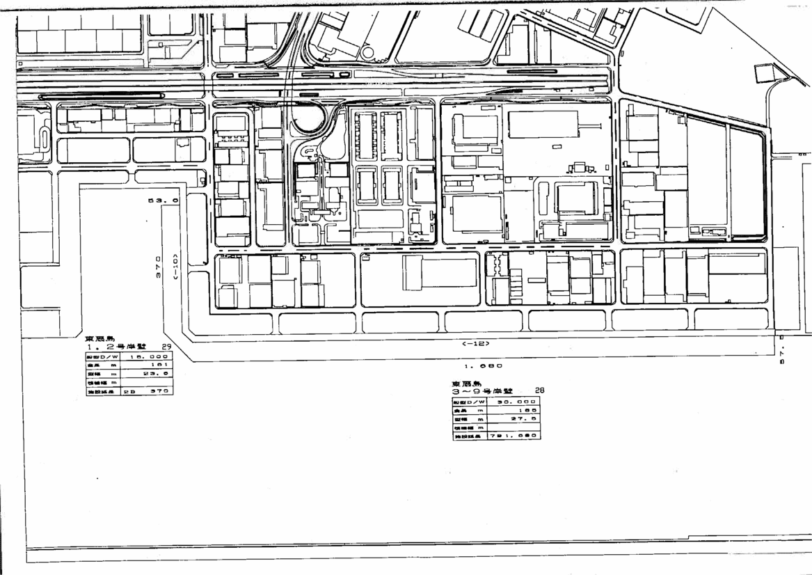
東扇島外貿ふ頭地区 | 東扇島1号岸壁、東扇島2号岸壁、東扇島3号岸壁、東扇島4号岸壁、東扇島5号岸壁、東扇島6号岸壁、東扇島7号岸壁、東扇島8号岸壁及び東扇島9号岸壁 |
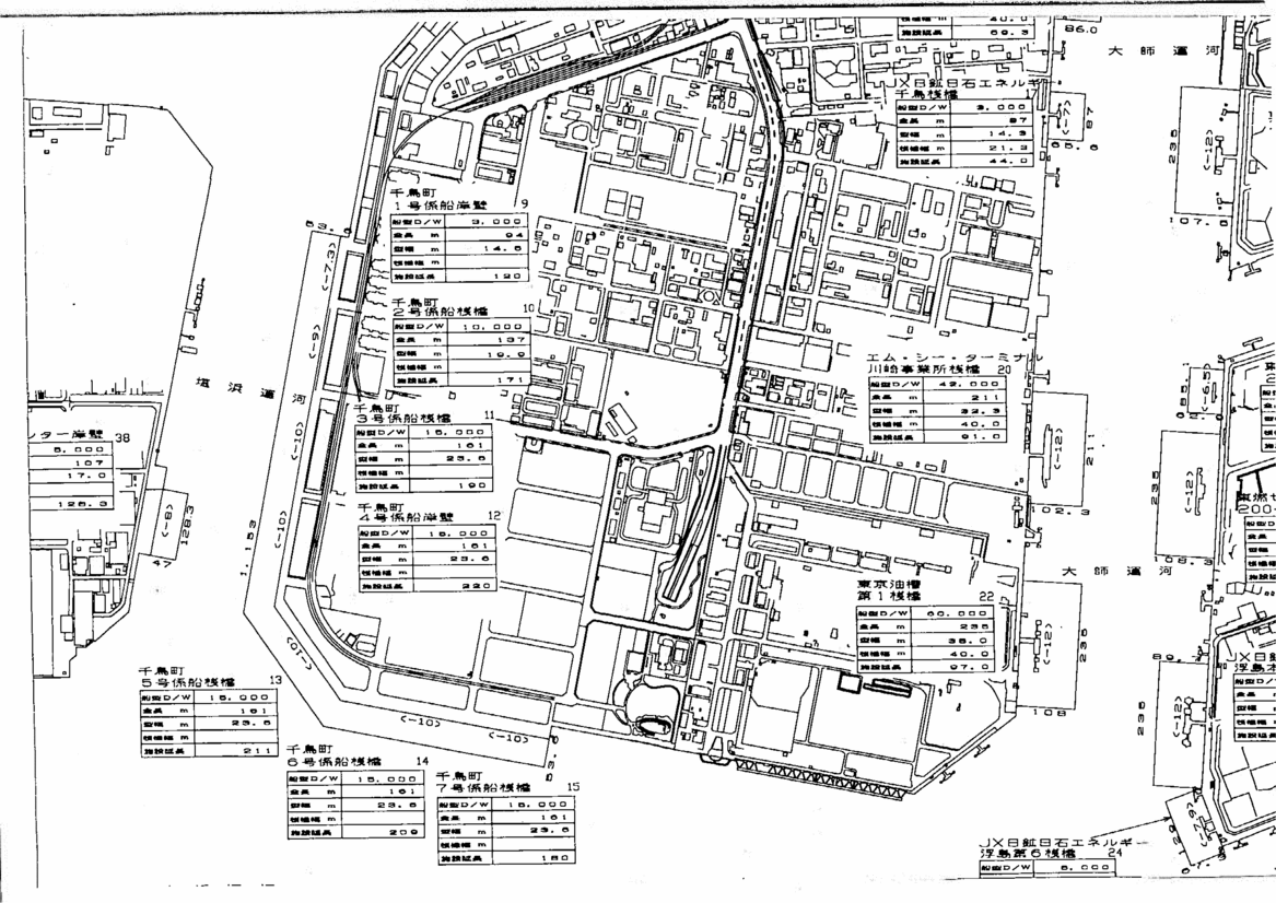
千鳥町ふ頭地区 | 千鳥町1号係船岸壁、千鳥町2号係船桟橋、千鳥町3号係船桟橋、千鳥町4号係船岸壁、千鳥町5号係船桟橋、千鳥町6号係船桟橋及び千鳥町7号係船桟橋 |
名称 | 水域 | ||
延長 | 幅 | 位置 | |
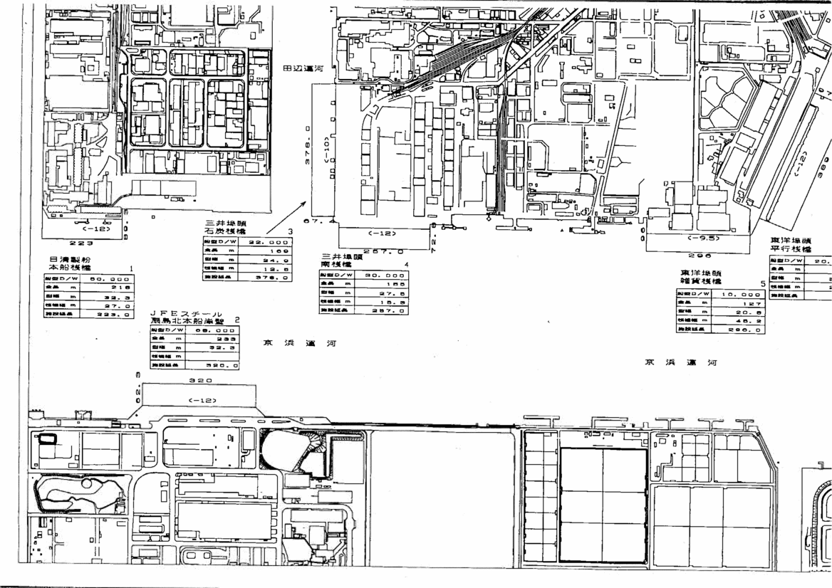
日清製粉本船桟橋 | メートル 223 | メートル 89.3 | 別図のとおり |
JFEスチール扇島北本船桟橋 | 320 | 62.3 | |
三井埠頭石炭岸壁 | 378 | 67.4 | |
三井埠頭南桟橋 | 257 | 72.8 | |
東洋埠頭雑貨桟橋 | 296 | 96.0 | |
東洋埠頭平行桟橋 | 389 | 97.6 | |
出光興産京浜ルブセンター川崎1号桟橋 | 164 | 104.3 | |
東亜石油・JXE本桟橋 | 235 | 89.7 | |
千鳥町1号係船岸壁 | 120 | 53.6 | |
千鳥町2号係船桟橋 | 171 | 53.6 | |
千鳥町3号係船桟橋 | 190 | 53.6 | |
千鳥町4号係船桟橋 | 220 | 53.6 | |
千鳥町5号係船岸壁 | 211 | 53.6 | |
千鳥町6号係船桟橋 | 209 | 53.6 | |
千鳥町7号係船桟橋 | 180 | 53.6 | |
日本ヴォパック桟橋 | 170.55 | 65.6 | |
JX日鉱日石エネルギー千鳥桟橋 | 87 | 65.6 | |
東燃ゼネラル石油A―1桟橋 | 235 | 107.5 | |
東燃ゼネラル石油第2桟橋 | 85.1 | 62.9 | |
エム・シー・ターミナルA・Bバース | 211 | 102.3 | |
東燃ゼネラル石油第1桟橋 | 235 | 108.3 | |
東京油槽第1桟橋 | 235 | 108.0 | |
JX日鉱日石エネルギー浮島本桟橋 | 235 | 89.7 | |
JX日鉱日石エネルギー浮島第6桟橋 | 129 | 67.3 | |
JX日鉱日石エネルギー第3桟橋 | 76 | 57.0 | |
東燃ゼネラル石油第45桟橋 | 61 | 55.1 | |
東燃ゼネラル石油第42桟橋 | 102 | 67.0 | |
東扇島1号岸壁及び東扇島2号岸壁 | 370 | 53.6 | |
東扇島3号岸壁、東扇島4号岸壁、東扇島5号岸壁、東扇島6号岸壁、東扇島7号岸壁、東扇島8号岸壁及び東扇島9号岸壁 | 1,680 | 57.5 | |
川崎コンテナ1号岸壁 | 700 | 82.3 | |
JFE東扇島原料岸壁C | 170 | 69.8 | |
JFE東扇島原料岸壁B | 240 | 116.5 | |
JFE東扇島原料岸壁A | 360 | 116.5 | |
東京電力扇島LNGバース | 464 | 205.75 | |
東燃ゼネラル石油扇島西シーバース | 385 | 161.75 | |
東燃ゼネラル石油扇島東シーバース | 510 | 183.7 | |
東亜石油油槽所京浜川崎シーバース | 半径400メートルの範囲 | ||
小野建川崎センター岸壁 | 128.3 | 47.0 | |









